物件詳細 一戸建 弘前市
details一戸建 弘前市一町田店舗付き中古住宅
情報更新日:2026-04-16
弘前市一町田の店舗付き住宅!価格を見直しました!飲食店や美容室・事務所などに適します!
- 所在地
- 青森県 弘前市 一町田字村元744-24
- 価格
- 1,350万円
- 間取り
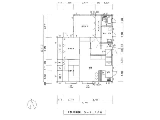
- 3LDK
- 築年数
- 平成14年5月
- 建物延面積
- 186.93㎡
- 敷地面積
- 166.51㎡ (公簿)
本物件の内容や画像等は全て現況優先となります。
各画像は参考図となります。
| 交通機関 |
JR奥羽本線 弘前駅徒歩約75分 バス 賀田東口徒歩約9分 |
||
|---|---|---|---|
| 学区 | 岩木小学校(0.5km)・津軽中学校(1.2km) | ||
| 詳細間取 | 3LDK (2階:洋8帖×1、2階:洋6帖×1、2階:和6帖×1、2階:LDK17.5帖) | ||
| 周辺施設 | |||
| 周辺環境 | その他費用 | ||
| 総戸数 | 1戸 | 建物構造 | 木造 |
| 築年月 | 平成14年5月 | 主要採光方向 | 不明 |
| 駐車場 | 敷地内 可 | 地勢 | 平坦 |
| 駐車場複数台 | 不可 | 土地権利 | 所有権 |
| 用途地域 | 用途指定なし | 国土法届 | 不要 |
| 取引態様 | 一般媒介 | 現況 | 居住中 |
| 引渡 | 他 (要相談) | 建ぺい率/容積率 | 70% / ─ |
| 地目 | 宅地 | 都市計画 | 調整 |
| セットバック | 無 | 接道状況 | 三方(公道・北側・間口12m・幅員7m、公道・南側・間口12m・幅員6m、公道・西側・間口14m・幅員6m) |
| 私道負担 | ─ / ─ | 建築確認番号 | |
| 法令上の制限 | 第22条区域・景観条例・屋外広告物条例・指定緩和区域 | ||
| 設備 | バス(有 シャワー有 追焚機能付 給湯式) トイレ(洋式 独立 水洗 暖房便座 洗浄機能付) 上水道設備(公営) 下水道設備 給湯(石油) 洗面化粧台(独立) LPガス ガスコンロ(3口) インターホン エアコン FFストーブ 下駄箱 洗濯機置場 システムキッチン 網戸 カーテンレール 照明器具 電話配線設備 TVアンテナ 車庫 フローリング クローゼット 郵便受 | ||
| 備考 | ※1階には旧飲食店(約19坪)の店舗がありますので、飲食店や美容室・事務所などに改装が可能です。市街化調整区域ですが指定緩和区域のため、建物の再建築は可能です。 ※同業他社による客付け可 | ||
| 取扱業者 |
㈱コーセー不動産 青森県知事免許(1)第3645号 青森県弘前市城東北三丁目4番地16 TEL:0172-55-5915 FAX:0172-55-5916 (公社)青森県宅地建物取引業協会会員 東北地区不動産公正取引協議会加盟事業者 |
||



















